Publications > Bulletins de l’association
Publié le 1 avril 2013
Bulletin 53 Besançon L’ancien hôpital du Saint-Esprit
avril 2013 Marie-Laure Bassi et Géraldine Mélot Service municipal d’archéologie préventive
Relecture des bâtiments à travers les méthodes de l’archéologie du bâti
L’histoire de l’ancien hôpital du Saint-Esprit débute au XIIIe siècle dans une ville qui, depuis le XIe siècle, est en pleine expansion. De nombreuses reconstructions, restaurations, transformations ou encore fondations d’églises furent mises en œuvre au cours de ces trois siècles de prospérité. L’établissement du Saint-Esprit profita de cette émulation pour s’installer dans le quartier du Maisel (actuel quartier autour de la place de la Révolution) (Fig. 1)

Cette partie de la ville se développa à partir du XIIIe siècle où commerçants, mais aussi institutions administratives (la commune) contribuèrent à la densification de l’urbanisme dans cette zone. L’hôpital du Saint-Esprit s’implanta au cœur de la ville, derrière ses murailles, en 1207, grâce à Jean, seigneur de Montferrand. Ce dernier offrit à l’ordre du Saint-Esprit un terrain qui s’étendait dans la zone appelée bourg, c’est-à-dire entre le Doubs, les ports de Hauterive et de Mayeur, la Grande Rue et le Clos Saint-Paul.
Dès sa création, l’hôpital se dota de lieux propres à toute création hospitalière. Le premier lieu, aujourd’hui conservé, est l’église (actuel temple protestant), réservée au culte pour les assistés et les religieux. Un cimetière se développait au devant de la façade sud de l’église, de l’autre côté de la rue du Saint-Esprit (actuelle rue Goudimel). D’autres bâtiments ‒ des lieux de vie des pauvres et des religieux, mais également des dépendances : cuisines, grange, pressoir et four… ‒ nécessaires au bon fonctionnement d’un hôpital, devaient compléter cet ensemble.
De nos jours, l’ancien hôpital du Saint-Esprit, situé à l’extrémité nord-est du quai Vauban (n°29), forme un ensemble immobilier composite occupé par différentes institutions (temple protestant, présidence de l’Université) et résidences de particuliers. Les bâtiments les plus représentatifs de ce complexe médiéval sont la tour carrée, la galerie sculptée extérieure et l’église (Fig. 2).

Malgré ses origines anciennes et la préservation de quelques bâtiments, cet ensemble est encore largement méconnu en raison de son manque de visibilité au sein du tissu urbain. Ce cas de figure est symptomatique à Besançon ; les grosses campagnes de réfection de toutes les façades sur rue au XVIIIe siècle masquent généralement des ensembles immobiliers souvent plus anciens. Pourtant, le patrimoine bâti médiéval bisontin existe encore et il est même parfois visible de tous, comme le prouve la découverte récente d’une façade entière du XIIIe siècle s’élevant rue du Loup. Cette redécouverte du patrimoine médiéval de la ville de Besançon démontre qu’il existe encore de nombreuses élévations de ce type qui demandent encore à être identifiées et caractérisées par le biais de l’archéologie du bâti. Cette discipline a pour but d’étudier les élévations de toute construction bâtie selon les mêmes méthodes utilisées pour l’archéologie « classique ». On réduit souvent le travail de l’archéologue à une fouille du sous-sol. C’est oublier que la recherche archéologique porte depuis ses origines sur l’étude des parties aériennes.
L’archéologie du bâti consiste à « lire les murs » afin de retrouver les phases de construction, les traces de reprises et de transformations. L’archéologie du bâti considère qu’un bâtiment évolue en fonction des besoins des individus qui l’habitent. Elle a pour but de restituer l’histoire et la chronologie relative de celui-ci en étudiant les modifications structurelles (percements, bouchage d’ouvertures, rehaussement des sols…). Il s’agit également de comprendre l’activité de bâtir, c’est à-dire comprendre comment s’organisait le chantier, comment travaillaient les bâtisseurs et quelles étaient leurs techniques.
C’est avec cette démarche qu’une étude de reconnaissance de structures anciennes conservées fut effectuée en juin 2012 par le service d’archéologie préventive de la ville de Besançon lors d’un diagnostic archéologique réalisé dans les caves de la tour carrée (Fig. 3 et 4).

Cette intervention fut l’occasion d’évaluer le potentiel archéologique des élévations de cette construction qui constitue l’ensemble médiéval phare de l’ancien hôpital, avec l’église et la galerie en bois sculptée. L’hôpital, créé au XIIIe siècle, fut l’objet d’une vaste reconstruction au XVe siècle dont la tour carrée en est le plus beau témoin. Cette campagne de travaux fut lancée sous le rectorat de Lambelet Vernier, recteur du Saint-Esprit de 1427 à 1476. La longévité de sa direction de l’hôpital (49 ans) permit à ce personnage d’affirmer son autorité et d’élever son établissement au premier rang des maisons de l’ordre du Saint-Esprit, faisant de l’hôpital de Besançon le lieu d’accueil le plus célèbre de la cité par son importance et sa richesse.
Les archives nous renseignent sur le déroulement du chantier et il semble que ce n’est pas Lambelet Vernier qui décida de la construction, mais la municipalité de Besançon. Elle mit en œuvre la construction de la tour et était responsable du chantier en 1443. Une ordonnance, antérieure à 1443, imposait à Lambelet Vernier la construction d’un élément de fortification au sein de son hôpital. Le caractère défensif du bâtiment apparaît clairement dans les textes. Il s’agissait de construire un édifice qui serait intégré aux remparts urbains de la cité et où les officiers de la cité devaient venir y faire le guet. À cette période (1420-1450), la ville avait besoin de se protéger contre les Écorcheurs qui avaient envahi la Franche-Comté et se rapprochaient rapidement de Besançon. Pour cette raison, les autorités municipales commencèrent la construction d’un espace défensif au sein de l’hôpital en 1443. À partir de 1448, les textes font apparaître un changement de parti concernant le caractère militaire de la tour. Lambelet Vernier semble vouloir détourner le projet initial pour se réapproprier la construction de la tour. Toutefois, il promit de respecter certaines obligations pour pouvoir achever la tour carrée. Toutes les fenêtres hautes devaient être munies d’une canonnière ronde placée entre les coussièges. De plus, la tour devait être le point culminant du quartier avec une toiture dépassant tous les autres édifices. Il lui était également imposé que toutes les fenêtres des derniers niveaux possèdent une forme carrée avec, de part et d’autre, deux crochets recevant une barbacane. En ce qui concerne le second étage, chaque fenêtre devait se munir de grilles à mailles serrées. Malgré ces contraintes, Lambelet Vernier parvint à se réapproprier un projet déjà existant et prit le droit d’en revoir, à sa guise, la conception. Il donna à l’édifice un caractère plus résidentiel que défensif par, notamment, l’installation d’un majestueux escalier en vis en façade. La construction de la tour carrée fut achevée vers l’année 1451 comme l’ont confirmé des analyses dendrochronologiques sur les bois de la charpente réalisées par Christophe Perrault.
Si l’on se fie uniquement aux textes anciens, on pourrait croire que la tour carrée fut une construction ex nihilo ; pourtant, l’étude des caves et des façades par le biais des méthodes de l’archéologie du bâti
atteste qu’en réalité il existait déjà un bâtiment à cet emplacement. En effet, la façade sud de la tour (côté cour avec la galerie en bois) montre clairement deux phases de construction distinctes (Fig. 5).

Fig. 5 – Façade sud de la tour carrée du Saint-Esprit
La partie basse de la façade qui correspond au rez-de-chaussée est constituée d’un petit appareil de moellons allongés, percé de baies caractéristiques du XIIIe siècle (Fig. 6).

Fig. 6 – Façade sud de la tour carrée du Saint-Esprit, détail des parements
Une porte en plein cintre, aujourd’hui bouchée, et deux jours rectangulaires sont conservés. Les deux petites fenêtres rectangulaires présentent des linteaux et des appuis monolithes dont les extrémités amorcent les montants. L’angle nord de la façade présente une chaîne de pierres de taille qui indique la largeur initiale du bâtiment du XIIIe siècle. Les constructeurs du XVe siècle ne sont donc pas partis de rien pour l’édification de la tour. Ils ont conservé le soubassement d’une construction datant du XIIIe siècle ainsi que les dimensions au sol de l’édifice. Seules les parties hautes de la tour relèvent du chantier du XVe siècle. Ces deux phases constructives sont clairement visibles par le changement des techniques de construction. Les maçonneries de la fin du Moyen Âge se différencient clairement par l’usage de pierres de taille aux angles et de moellons de moyen appareil pour le reste des murs. Malheureusement, les archives sont muettes concernant le plan et la destination de ce bâtiment primitif de l’hôpital.
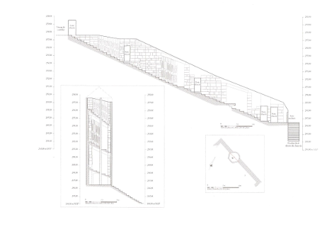
La volonté du recteur de donner à la tour un caractère résidentiel est illustrée par le choix de construire un escalier en vis de prestige. Il est l’élément le plus remarquable de la tour du Saint Esprit. Ce modèle d’escalier en vis est, en soit, relativement commun en France et en Franche Comté. En revanche, l’architecture bisontine n’a eu recours à ce type d’escalier que très rarement, préférant les escaliers extérieurs en bois. L’autre particularité de cet élément architectural, et qui en fait toute l’originalité, est sa disposition par rapport au bâtiment qui l’accueille. En effet, cet ouvrage s’élève sur la façade est de l’édifice ; les trois quarts de son encombrement est en œuvre et le dernier quart hors œuvre, en encorbellement sur la façade (Fig. 7, 8, 9).


Fig. 9 – Relevés en coupe et en développé de l’escalier en vis
Depuis le rez-de-chaussée, un escalier droit extérieur montait vers un palier au premier étage, où une porte donnait sur l’escalier en vis. Celui-ci était délimité, du côté intérieur de la tour, par des murs en pierre de taille. À l’extérieur, les marches étaient disposées au-dessus d’un limon de plan circulaire, tandis que les parois n’étaient constituées que de planches de chêne ajourées (Fig. 10 et 11).


Cet escalier était un ouvrage soigné puisque le limon était mouluré, agrémenté au premier étage de
sculptures végétales et figuratives (Fig. 12 et 13). La partie hors œuvre était fermée par des planches
ajourées en chêne, permettant ainsi la diffusion de la lumière dans l’escalier sur les trois niveaux.


Fig. 13 – Tour carrée, escalier en vis,détail du décor sculpté du limon
Aujourd’hui, seules les planches du premier étage sont visibles depuis l’intérieur, alors que les plus
hautes sont observables uniquement depuis l’extérieur (Fig.7 et 11).
Entre la tour carrée et l’église, une galerie sculptée en bois fait encore toute la renommée de l’ancien hôpital (Fig. 14). Cet ouvrage est exceptionnel par sa décoration et son état de conservation et c’est aussi un des rares exemplaires conservés dans la ville. Malgré la qualité des sculptures (Fig. 15), ce balcon est encore mal documenté, bien que la facture des différents éléments qui le composent tende à le dater de la fin du XVe siècle ou du début du XVIe siècle. Ce balcon servait à mettre en lien la tour carrée et l’église, mais aussi tous les bâtiments qui se développaient à l’emplacement de l’actuelle présidence de l’Université, comme la salle des Pauvres. Toute une série d’ouvertures bouchées conservées dans le mur qui accueille la galerie en témoigne. L’étude de ces passages permettrait de documenter la circulation au sein de l’hôpital et de les dater avec plus de précision.

Par ailleurs, l’église, qui est un des rares monuments du XIIIe siècle presque entièrement conservé à Besançon, mériterait d’être étudiée plus en détail (Fig. 16 et 17). Enrichissant les connaissances actuelles sur l’architecture gothique religieuse de la capitale comtoise, des éléments conservés dans les combles de
l’édifice mériteraient en outre d’être analysés avec attention.

Fig. 16 – Église du Saint-Esprit (actuel temple), vue extérieure

Fig.17 – Église du Saint-Esprit (actuel temple), vue intérieure
Une fenêtre à coussiège (Fig.18), encore visible dans les combles de l’église, laisse présager que le bâtiment a été intégré, entre le XIIIe et le XVe siècles aux fortifications de la ville.En effet, cette baie située en partie haute devait probablement servir de fenêtre de guet. La parcelle de l’hôpital se situe, en effet, sur le tracé probable des différentes phases de murs de berges et de fortifications mises au jour lors de la fouille du parking des remparts dérasés (2001).

Fig.18 – Eglise du Saint-Esprit (actuel temple), combles, fenêtre à coussiège
Au XVe siècle, la municipalité s’est fortement impliquée dans la reconstruction de la tour carrée pour qu’elle fasse partie intégrante du système défensif de Besançon. Il devait sans doute en être de même dès la création du complexe hospitalier au XIIIe siècle.
Il serait également intéressant d’essayer de comprendre comment l’aménagement d’un tel établissement
s’est inséré dans le tissu urbain du quartier et s’y est adapté pendant la période du bas Moyen Âge. Le texte de donation du XIIIe siècle précise qu’il s’agissait « d’un vaste terrain franc de toute servitude, entre le port de Hauterive et le port Mayeur ». La création d’un hôpital réclamait une surface au sol conséquente dans un quartier qui était déjà densément peuplé. Les données archéologiques d’un diagnostic réalisé dans les caves de la tour carrée en juin 2012 laissent penser que les constructeurs ont gagné une partie de l’espace nécessaire sur les berges du Doubs. Les conditions d’implantation de l’hôpital pourraient être précisées et confrontées aux données archéologiques des fouilles plus anciennes du quartier (l’îlot Paris, de la rue Goudimel et du parking des Remparts dérasés), permettant ainsi une vision globale de la topographie médiévale dans cette partie de la boucle et des mutations urbaines à la fin du Moyen Âge.
Pour conclure, l’ancien hôpital du Saint-Esprit a conservé de nombreux témoins bâtis de son histoire s’étalant du XIIIe siècle jusqu’à la fin du Moyen Âge, notamment grâce à l’occupation des lieux par l’Église Réformée de la ville de Besançon qui, depuis de nombreuses années, entretient les lieux. Les constructions encore existantes font partie des plus beaux bâtiments médiévaux de Besançon, mais sont paradoxalement mal connues. L’intervention archéologique de 2012 a démontré tout le potentiel de ces bâtiments. Il est certain qu’une étude plus poussée permettrait d’approfondir nos connaissances sur ce site médiéval exceptionnel et de lui redonner toute sa place au sein du patrimoine bâti de la ville
Marie-Laure Bassi et Géraldine Mélot Service municipal d’archéologie préventive